2 Reminder Lane
£150,000 for a 30% share
Property description
Third floor apartment with river views
Property address
2 Reminder Lane, London, SE10 0UJ
Shared Ownership
*** If you would like to arrange a viewing for this property please click to register your interest. If you have an eligible Shared Ownership application with L&Q, you will be sent the sellers contact information to arrange a viewing ***
Shared Ownership
Full Market Value: £500,000
Share Value (30%): £150,000
Monthly Rent: £844.79
Service Charge: £446.32
Annual Ground Rent: N/A
Council Tax Band: D
125 year lease commenced March 2017 - 116 years remaining
EWS1 Certification is available for this property - B2 Rating (a letter of assurance is available for lenders)
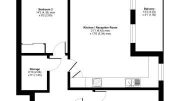
All rooms lead off a central hallway in this stylish dual aspect third floor apartment with river views that can be fully enjoyed from a private balcony, which is large enough for dining and entertaining. The main living area incorporates a high gloss kitchen with integrated appliances. There are two well proportioned and carpeted double bedrooms, the master with built in mirrored wardrobes. A contemporary bathroom completes the accommodation, which also includes a separate storage cupboard in the hallway.
Residents have access to the Aperture building with concierge services, co-working areas, a gym, meeting rooms, a restaurant and social spaces.
Just minutes from the O2 Arena and London's Design District, home to 1,800 creatives, the area offers a vibrant mix of independent cafes, bars, and restaurants, including Canteen Food Hall & Bar, as well as shops, pharmacies, and local schools. Residents also have access to 48 acres of public outdoor green spaces, the Tide-a 5km elevated walking and running route along the Thames-and a golf driving range. Maritime Greenwich (Cutty Sark, Royal Observatory, National Maritime Museum) are also close by.
North Greenwich Station offers great transport links via both tube (Jubilee Line) and river bus (Thames Clipper). A single tube stop brings you to the commerce and culture of Canary Wharf, while the Elizabeth Line puts Bond Street and London City Airport within a 20-minute reach. On a sunny day why not choose the cable car, located a short distance away.
The buyer will require a deposit to obtain a mortgage for this property.
To meet the requirements for this property we require as a guideline, a minimum household income of £72,886. If you are offered the property, your ability to afford this property will be assessed at your financial interview. Please note that applicants should purchase the maximum share that they can afford and sustain.
Only applicants who are registered with London and Quadrant will be eligible to be offered a property in one of our schemes. If you are not registered, please visit our website lqhomes.com and register to obtain your unique reference number.
Your home is at risk if you fail to keep up repayments on a mortgage, rent or other loan secured on it. Please make sure you can afford the repayments before you take out a mortgage.
These particulars are of opinion only, are intended to give a fair description and do not form the basis of a contract. The descriptions and all other information are believed to be correct as of February 2026.
This is an indication of how much these apartments might cost.
For more detailed information please register your interest in this property.
| Minimum Full Market Value | £500,000 |
|---|---|
| Minimum Share Percentage | 30% |
| Minimum Share Value | £150,000 |
| Monthly Service Charge | £446 |
| Minimum Deposit | £15,000 |
Reminder Lane offers a perfect blend of riverside living, urban convenience, and village charm. This sought-after residential street is ideally positioned just moments from the River Thames, with scenic walks along the waterfront and panoramic views of Canary Wharf.
Residents enjoy easy access to the vibrant amenities of The Greenwich Peninsula, including an eclectic mix of independent cafés, shops, restaurants. The area is steeped in heritage, home to landmarks such as the Royal Observatory, Cutty Sark, and Greenwich Park - one of London's most beautiful green spaces.
Excellent transport links make commuting seamless, with the Jubilee Line from North Greenwich station nearby, which is 2 minutes from Canary Wharf and 9 minutes from London Bridge. There are plenty of local buses, and The O2 is a 10 minute walk away with over 30 bars & restaurants and a wide range of leisure activities. Local amenities include a doctors surgery, a dentist, shops and a bakery, and is close to good schools and nurseries.
Reminder Lane combines peaceful, community-oriented living with the convenience of a well-connected London location - making it an ideal setting for professionals, families, and those seeking a balanced lifestyle close to the capital.
Others
- Balcony
- Central heating
Outside space
- Communal Garden
Heating
- Double Glazing
Accessibility
- Lift access

















