Abbotts Wharf
£225,000 for a 50% share
Property description
Great Location. Good EPC Rating. Close to Local Amenities. For a limited time, enjoy a £500*One4All voucher on this property.
Property address
Stainsby Rd, London, e14 6jl
Shared Ownership
** If you would like to arrange a viewing for this property please click to register your interest. If you have an eligible Shared Ownership application with L&Q, you will be sent the sellers contact information to arrange a viewing**
Shared Ownership
Full Market Value: £450,000
Share Value (50%): £225,000
Monthly Rent: £553.92
Service Charge: £334,78
Annual Ground Rent - N/A
Council Tax Band: D
125 year lease commenced July/2005- 104 years remaining
EWS1 - Tri-Fire EWS1 - EWS1 CERTIFICATION IS AVAILABLE FOR THIS BLOCK - A1 RATING- We are now working with an independent panel of Fire Engineers to review any L&Q building inspections conducted by Tri Fire. Where the panel is not satisfied with the inspection and certificate awarded, we will instruct a new inspection of the building as soon as possible.
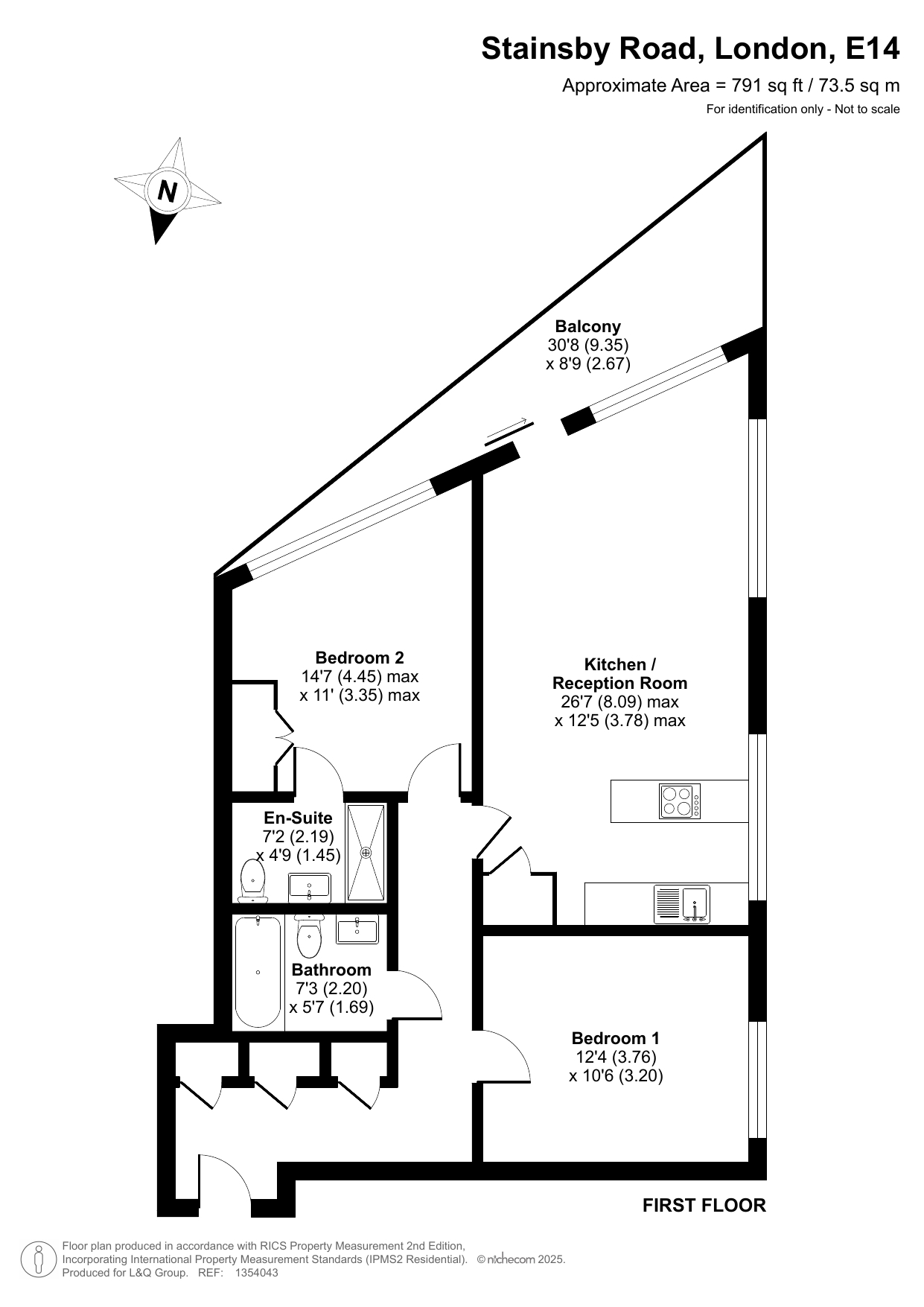
L&Q welcomes you to view this two bedroom, 1st floor apartment.
This apartment consists of an open-plan kitchen and living area which is full of natural light. This opens out onto a private balcony which is great for relaxing and etnteraining. The kitchen is fitted with cream units and a dark grey marble effect worktop with white tiling. The kitchen also benefits from integrated appliances. There are two good size bedrooms, one of which also leads onto the private balcony and also benefits from an en-suite bathroom. The main bathroom comes complete with white three-piece suite with a shower over the bath.
Abbott's Wharf is just half a mile from Westferry Road DLR Station which offers good links to the City and Canary Wharf and less than a mile from Mile End station, giving access to the District, Central, and Hammersmith & City lines. The development has many nearby amenities including Crisp Street market. This property is right next to a TFL city bike hire station. This, together with the canal path, allows you to reach places like Stratford or Tower Bridge fast & with a nice journey.
You will require a deposit to obtain a mortgage for this property.
To meet the requirements for this property we require as a guideline, a minimum household income of £70,742. If you are offered the property, your ability to afford this property will be assessed at your financial interview. Please note; applicants should purchase the maximum share that they can afford and sustain.
Only applicants who are registered with London and Quadrant will be eligible to be offered the property for our schemes. To register, please visit our website - www.lqhomes.com
Your home is at risk if you fail to keep up repayments on a mortgage, rent or other loan secured on it. Please make sure you can afford the repayments before you take out a mortgage.
These particulars are of opinion only, are intended to give a fair description and do not form the basis of a contract. The descriptions and all other information are believed to be correct as of September 2025.
The £500*One4All voucher is currently being offered on this resale property for a limited time and is applicable to any Shared Ownership purchase that completes a full reservation on or before 12th December 2025 and then completes on the sale before 31st March 2026. The voucher will be supplied within 75 days of completion of the purchase and will be an E-Voucher, issued by email to the Sole or Primary Purchaser. Further terms and conditions may be in place from the voucher provider so please do check with your chosen lender, and it is the purchaser's responsibility to satisfy themselves of any terms applicable. The voucher cannot be offset against any fees or monies due from the purchase. L&Q will not be responsible for direct payments to any lenders, or third parties. L&Q reserve the right to remove an incentive at any time.
This is an indication of how much these apartments might cost.
For more detailed information please register your interest in this property.
| Minimum Full Market Value | £450,000 |
|---|---|
| Minimum Share Percentage | 50% |
| Minimum Share Value | £225,000 |
| Monthly Service Charge | £335 |
| Minimum Deposit | £22,500 |
Abbott's Wharf is just half a mile from Westferry Road DLR Station which offers good links to the City and Canary Wharf and less than a mile from Mile End station, giving access to the District, Central, and Hammersmith & City lines. The development has many nearby amenities including Crisp Street market. This property is right next to a TFL city bike hire station. This, together with the canal path, allows you to reach places like Stratford or Tower Bridge fast & with a nice journey.




















