Blackthorn Avenue
£260,000 for a 40% share
Property description
Allocated Parking. Large 5 Bedroom Terrace House. Private Rear Garden. Good Length of Lease.
Property address
Chigwell IG7 4FW, Chigwell, ig7 4fw
Shared Ownership
** If you would like to arrange a viewing for this property please click to register your interest. If you have an eligible Shared Ownership application with L&Q, you will be sent the sellers contact information to arrange a viewing**
Shared Ownership
Full Market Value: £650,000
Share Value (40%): £260,000
Monthly Rent: £951.04
Service Charge: £92.00
Annual Ground Rent: £0
Council Tax Band: E
250 year lease commenced April 2021 - 245 years remaining
L&Q welcomes you to view this five bedroom, terraced house.
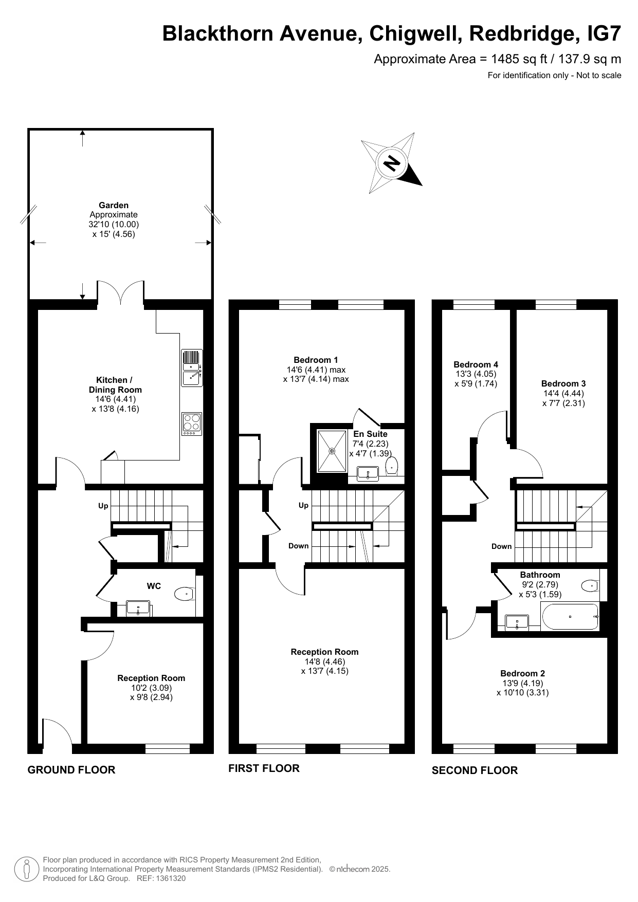
In entering this lovely five bedroom terraced house there is a good sized hall. Off the hall there is a good sized reception room, downstairs wc and a large kitchen/diner. The kitchen is modern and stylish and fitted with light grey units. There is the benefit of intergrated appliances. This are is large enough for a dining table and sofa which leads onto the private rear garden, which has all day sunshine. There are three double bedrooms and a single bedroom. One of the double bedrooms has a lovely en-suite. A contemporary family bathroom completes the accommodation. Allocated parking space. There is storage on very floor. The entire property is modern bright and airy.
This home is located within the well-regarded Oaklands Hamlet development which is situated adjacent to Hainault Forest Golf Club. Hainault tube station on the Central line connects to central London, the wider underground network and mainline train stations. Chadwell Heath mainline station, just 3.5 miles away, benefits from Crossrail, providing faster, direct connections to the city and beyond.
Everyday shopping needs are catered for at the Tesco Metro just over a mile from the development. Or the local Waitrose in Buckhurst Hill, Aldi in Ilford and Sainsbury's in Woodford Green are close by. Just 4 miles away in Romford your choice is extended at The Liberty, The Brewery and Romford Shopping Hall that offer a range of High Street favourites, plus bowling and a cinema.
The buyer will require a deposit to obtain a mortgage for this property.
To meet the requirements for this property we require as a guideline, a minimum household income of £82,103. If you are offered the property, your ability to afford this property will be assessed at your financial interview. Please note that applicants should purchase the maximum share that they can afford and sustain.
Only applicants who are registered with London and Quadrant will be eligible to be offered a property in one of our schemes. If you are not registered please visit our website www.lqhomes.com and register to obtain your unique reference number.
Your home is at risk if you fail to keep up repayments on a mortgage, rent or other loan secured on it. Please make sure you can afford the repayments before you take out a mortgage.
These particulars are of opinion only, are intended to give a fair description and do not form the basis of a contract. The descriptions and all other information are believed to be correct as of October 2025.
This is an indication of how much these apartments might cost.
For more detailed information please register your interest in this property.
| Minimum Full Market Value | £650,000 |
|---|---|
| Minimum Share Percentage | 40% |
| Minimum Share Value | £260,000 |
| Monthly Service Charge | £92 |
| Minimum Deposit | £26,000 |
This home is located within the well-regarded Oaklands Hamlet development which is situated adjacent to Hainault Forest Golf Club. Hainault tube station on the Central line connects to central London, the wider underground network and mainline train stations. Chadwell Heath mainline station, just 3.5 miles away, benefits from Crossrail, providing faster, direct connections to the city and beyond.
Everyday shopping needs are catered for at the Tesco Metro just over a mile from the development. Or the local Waitrose in Buckhurst Hill, Aldi in Ilford and Sainsbury's in Woodford Green are close by. Just 4 miles away in Romford your choice is extended at The Liberty, The Brewery and Romford Shopping Hall that offer a range of High Street favourites, plus bowling and a cinema.
Parking
- Allocated parking
- On street/resident parking
Outside space
- Rear Garden













