Blackthorn Avenue
£156,000 for a 30% share
Property description
Three/four bedroom home on the Oaklands Hamlet development
Property address
Blackthorn Avenue, Chigwell, IG7 4FW
Shared Ownership
SHARED OWNERSHIP
Full Market Value: £520,000
Share Value (30%): £156,000
Monthly Rent: £1028.97
Service Charge: £93.41
Council Tax Band: D
250 year lease commenced April 2021 - 245 years remaining
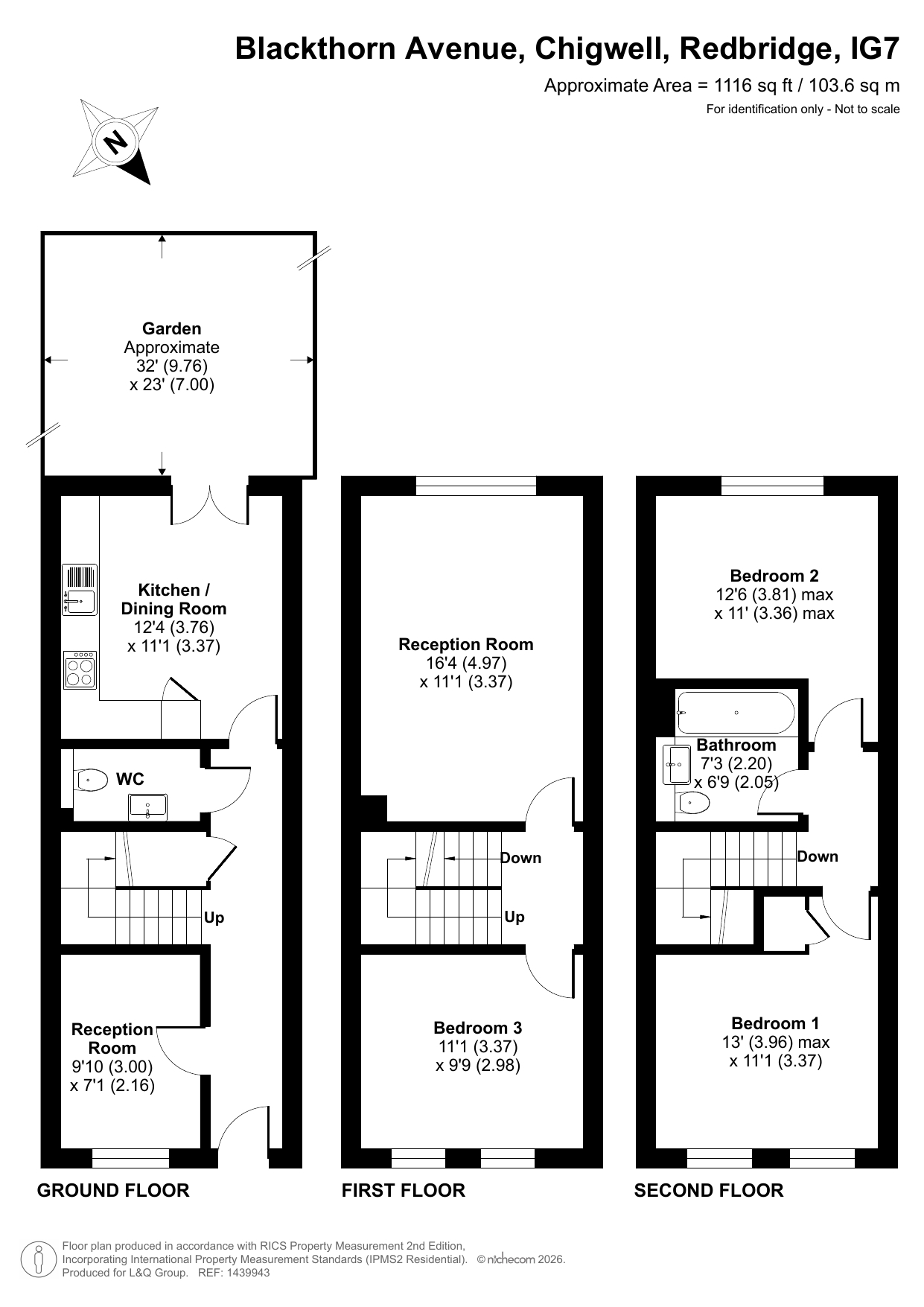
A bright entrance hall takes you into this home with a study/fourth bedroom overlooking the front garden. Past the staircase and handy guest cloakroom/WC find a kitchen/diner that takes you via double doors into the south facing garden, which has a large patio area. The kitchen units are finished in a matt grey with matching worksurfaces and include integrated appliances. On the first floor the generous reception room over looks the rear garden and to the front of the house, find a double bedroom. On the top floor find two double bedroom and the modern family bathroom
This home is located within the well-regarded Oaklands Hamlet development which is situated adjacent to Hainault Forest Golf Club. Hainault tube station on the Central line connects to central London, the wider underground network and mainline train stations. Chadwell Heath mainline station, just 3.5 miles away, benefits from Crossrail, providing faster, direct connections to the city and beyond.
Everyday shopping needs are catered for at the Tesco Metro just over a mile from the development. Or the local Waitrose in Buckhurst Hill, Aldi in Ilford and Sainsbury's in Woodford Green are close by. Just 4 miles away in Romford your choice is extended at The Liberty, The Brewery and Romford Shopping Hall that offer a range of High Street favourites, plus bowling and a cinema.
There are also parks and open green spaces nearby, which are ideal for families.
The buyer will require a deposit to obtain a mortgage for this property.
To meet the requirements for this property we require as a guideline, a minimum household income of £67,796 If you are offered the property, your ability to afford this property will be assessed at your financial interview. Please note that applicants should purchase the maximum share that they can afford and sustain.
Only applicants who are registered with London and Quadrant will be eligible to be offered a property in one of our schemes. If you are not registered please visit our website www.lqhomes.com and register to obtain your unique reference number.
Your home is at risk if you fail to keep up repayments on a mortgage, rent or other loan secured on it. Please make sure you can afford the repayments before you take out a mortgage.
These particulars are of opinion only, are intended to give a fair description and do not form the basis of a contract. The descriptions and all other information are believed to be correct as of AprilL 2026.
This is an indication of how much these apartments might cost.
For more detailed information please register your interest in this property.
| Minimum Full Market Value | £520,000 |
|---|---|
| Minimum Share Percentage | 30% |
| Minimum Share Value | £156,000 |
| Monthly Service Charge | £93 |
| Minimum Deposit | £15,600 |
This home is located within the well-regarded Oaklands Hamlet development which is situated adjacent to Hainault Forest Golf Club. Hainault tube station on the Central line connects to central London, the wider underground network and mainline train stations. Chadwell Heath mainline station, just 3.5 miles away, benefits from Crossrail, providing faster, direct connections to the city and beyond.
Everyday shopping needs are catered for at the Tesco Metro just over a mile from the development. Or the local Waitrose in Buckhurst Hill, Aldi in Ilford and Sainsbury's in Woodford Green are close by. Just 4 miles away in Romford your choice is extended at The Liberty, The Brewery and Romford Shopping Hall that offer a range of High Street favourites, plus bowling and a cinema.
There are also parks and open green spaces nearby, which are ideal for families.
Parking
- Allocated parking
Others
- Central heating
- Pets allowed
Heating
- Double Glazing
Outside space
- Private Garden


















