Bombardier House
£126,000 for a 35% share
Property description
One bedroom apartment in popular Kidbrooke Village. For a limited time, enjoy a £500*One4All voucher on this property.
Property address
Whittle Road, Kidbrooke, SE3 9GZ
Shared Ownership
SHARED OWNERSHIP
Full market value - £360,000
You pay (35%) - £126,000
Monthly Rent - £472.95
Monthly Service Charge - £264.36
Annual Ground Rent - peppercorn
999 year lease commenced in January 2020 (993 years remaining)
EWS1 certification is available for this property - A1 rating
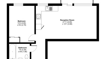
Enter this east facing apartment directly into the open plan living area which leads to a private balcony overlooking the communal gardens. The kitchen is fitted to a high standard and incorporates fully integrated appliances. The generous bedroom has fitted wardrobes. A contemporary bathroom and utility room complete the acommodation.
Kidbrooke Station is a few mins walk from the apartment, offering a regular service to London Bridge (15 minutes), Victoria, Charing Cross, Waterloo East and Cannon Street plus links to Canary Wharf via the DLR (Lewisham).
Kidbrooke Village offers a newly opened on-site Sainsbury's, Starbucks, pharmacy, doctors, dentist, a coffee shop and a bar/restaurant. Green spaces include Cator Park and the nature reserve as well as Sutcliffe Park, Blackheath and Greenwich Park all on your doorstep. It also has various gyms close by.
The buyer will require a deposit to obtain a mortgage for this property.
To meet the requirements for this property we require as a guideline, a minimum household income of £48,968. If you are offered the property, your ability to afford this property will be assessed at your financial interview. Please note that applicants should purchase the maximum share that they can afford and sustain.
Only applicants who are registered with London and Quadrant will be eligible to be offered a property in one of our schemes. If you are not registered, please visit our website lqhomes.com and register to obtain your unique reference number.
Your home is at risk if you fail to keep up repayments on a mortgage, rent or other loan secured on it. Please make sure you can afford the repayments before you take out a mortgage.
These particulars are of opinion only, are intended to give a fair description and do not form the basis of a contract. The descriptions and all other information are believed to be correct as of November 2025.
The £500*One4All voucher is currently being offered on this resale property for a limited time and is applicable to any Shared Ownership purchase that completes a full reservation on or before 12th December 2025 and then completes on the sale before 31st March 2026. The voucher will be supplied within 75 days of completion of the purchase and will be an E-Voucher, issued by email to the Sole or Primary Purchaser. Further terms and conditions may be in place from the voucher provider so please do check with your chosen lender, and it is the purchaser's responsibility to satisfy themselves of any terms applicable. The voucher cannot be offset against any fees or monies due from the purchase. L&Q will not be responsible for direct payments to any lenders, or third parties. L&Q reserve the right to remove an incentive at any time.
This is an indication of how much these apartments might cost.
For more detailed information please register your interest in this property.
| Minimum Full Market Value | £360,000 |
|---|---|
| Minimum Share Percentage | 35% |
| Minimum Share Value | £126,000 |
| Monthly Service Charge | £264 |
| Minimum Deposit | £12,600 |
Kidbrooke Station is a few mins walk from the apartment, offering a regular service to London Bridge (15 minutes), Victoria, Charing Cross, Waterloo East and Cannon Street plus links to Canary Wharf via the DLR (Lewisham).
Kidbrooke Village offers a newly opened on-site Sainsbury's, Starbucks, pharmacy, doctors, dentist, a coffee shop and a bar/restaurant. Green spaces include Cator Park and the nature reserve as well as Sutcliffe Park, Blackheath and Greenwich Park all on your doorstep. It also has various gyms close by.
Others
- Balcony
- Central heating
- Double Glazing
- Lift access
Outside space
- Communal Garden
















