Herringbone Apartments
£112,500 for a 25% share
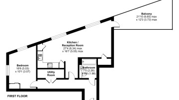
Property description
Private Balcony - Long Lease Term - Communal Roof Terrace
Property address
Herringbone Apartments, London, SW18 4PF
Shared Ownership
SHARED OWNERSHIP
Full Market Value: £450,000
Share Value (25%): £112,500
Monthly Rent: £428.44
Service Charge: £427.94 [Additional Charge of £911.73 Payable Per Quarter to Rendall and Rittner Managing Agents - £303.91 Monthly]
Annual Ground Rent: £350.00
Council Tax Band: D
250 year lease commenced February 2016 - 239 years remaining
EWS1 - EWS1 Certification is available for this property - B1 Rating.
** If you would like to arrange a viewing for this property please click to register your interest. If you have an eligible Shared Ownership application with L&Q, you will be sent the sellers contact information to arrange a viewing**
This bright apartment consists of an open-plan kitchen and living area, flooded with natural light from wide windows. The kitchen is fitted with gloss grey wall and base units, and a grey oak effect worktop. The kitchen also benefits from integrated appliances including an oven, hob, extractor fan, fridge freezer and dishwasher. Spacious double bedroom benefitting from built-in storage cupboard. The bathroom comes complete with a white three-piece suite with a shower over bath and a grey tile surround. Additional storage cupboard in hallway.
This property benefits from a sinking fund. A sinking fund is a long-term savings plan that leaseholders contribute to every month through service charges. This is used to pay for major works that are required, such as replacing a roof.
This apartment is set in the heart of Wandsworth town, moments from Southside shopping centre providing everyday essentials with a Waitrose supermarket, and it has a good range of useful high street stores, restaurants and a cinema. The area is heaven for foodies, with great cafés and restaurants spanning cuisine from Indian street food to hip barbecue joints and laid-back brunch spots. King Georges Park is close by and Wandsworth Town (National Rail) is a 10 minute walk away and provides services to London Waterloo. Nearby East Putney (District line) station also provides services to Victoria and Bank.
The buyer will require a deposit to obtain a mortgage for this property.
To meet the requirements for this property we require as a guideline, a minimum household income of £62,000. If you are offered the home, your ability to afford this property will be assessed at your financial interview. Please note that applicants should purchase the maximum share that they can afford and sustain.
Only applicants who are registered with London and Quadrant will be eligible to be offered a property in one of our schemes. If you are not registered please visit our website www.lqhomes.com and register to obtain your unique reference number.
*APPLICANTS MUST BE LIVING OR WORKING IN WANDSWORTH AND REGISTERED WITH THE LOCAL AUTHORITY HOMEBUY TEAM*
Your home is at risk if you fail to keep up repayments on a mortgage, rent or other loan secured on it. Please make sure you can afford the repayments before you take out a mortgage.
These particulars are of opinion only, are intended to give a fair description and do not form the basis of a contract. The descriptions and all other information are believed to be correct as of March 2026.
This is an indication of how much these apartments might cost.
For more detailed information please register your interest in this property.
| Minimum Full Market Value | £450,000 |
|---|---|
| Minimum Share Percentage | 25% |
| Minimum Share Value | £112,500 |
| Monthly Service Charge | £124 |
| Minimum Deposit | £11,250 |
This apartment is set in the heart of Wandsworth town, moments from Southside shopping centre providing everyday essentials with a Waitrose supermarket, and it has a good range of useful high street stores, restaurants and a cinema. The area is heaven for foodies, with great cafés and restaurants spanning cuisine from Indian street food to hip barbecue joints and laid-back brunch spots. King Georges Park is close by and Wandsworth Town (National Rail) is a 10 minute walk away and provides services to London Waterloo. Nearby East Putney (District line) station also provides services to Victoria and Bank.
Others
- Balcony
- Central heating
Outside space
- Communal Garden
Accessibility
- Lift access


















