Kenton Apartments
£160,000 for a 40% share
Property description
Modern interiors / long lease/ close to local amenities
Property address
Kenton Apartments, Clapham, SW4 7AQ
Shared Ownership
SHARED OWNERSHIP
Full Market Value: £400,000
Share Value (40%): £160,000
Monthly Rent: £626.84
Service Charge: £201.00 - paid direct to Managing Agent
Council Tax Band: C
990 year Lease commenced June 2008 - 973 years remaining
EWS1 certification is available - B1 rating
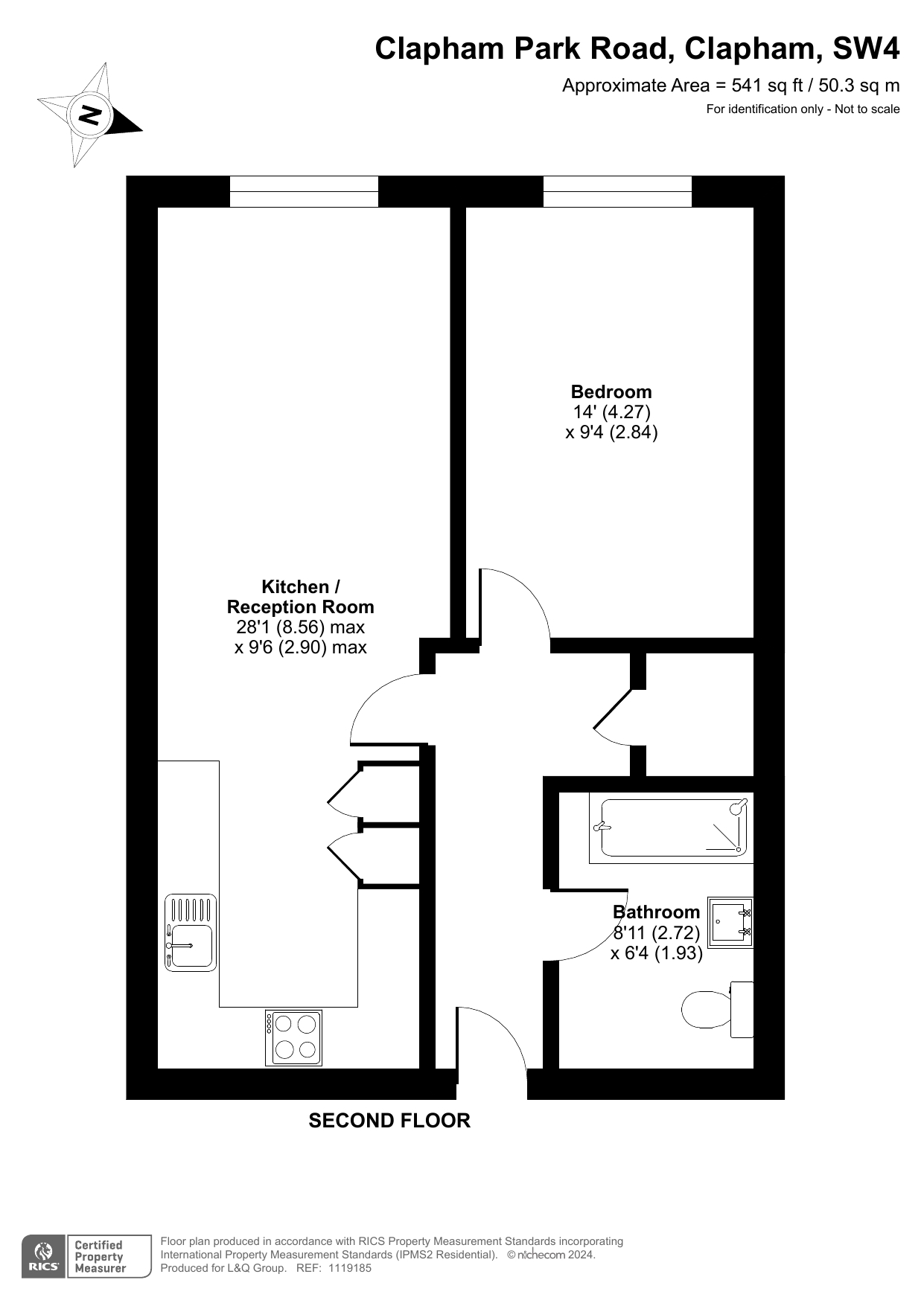
This bright and spacious one bedroom apartment consists of a stylish open-plan kitchen and living area, flooded with natural light. The kitchen is fitted with matt grey wall and base units, white wood effect worktop. The kitchen also benefits from integrated appliances including a fridge freezer, oven, hob and extractor fan. Spacious main double bedroom benefiting from built-in storage cupboards. The bathroom comes complete with a white three-piece suite with a shower over bath. Consists of modern white tiled and mosaic detail bordering. Stylish wooden flooring throughout the property expect for the bathroom.
Kenton Apartments offers you the opportunity to live in an area known for its trendy image of bars, restaurants and nightlife. On Clapham High Street you'll find a familiar mix of shops and a selection of the major banks. Clapham Common Tube Station is within 0.2 miles and Clapham North Tube Station is within 0.5 miles. Clapham High Street Station is within 0.5 miles and clapham Junction Station is within 1.7 miles. Bus links 35, 37, 88, 137, 155, 322, 345 & 417. Road links include the A3 and South Circular.
The buyer will require a deposit to obtain a mortgage for this property.
To meet the requirements for this property we require as a guideline, a minimum household income of £57,842. If you are offered the home, your ability to afford this property will be assessed at your financial interview. Please note that applicants should purchase the maximum share that they can afford and sustain.
Only applicants who are registered with London and Quadrant will be eligible to be offered a property in one of our schemes. If you are not registered please visit our website www.lqhomes.com and register to obtain your unique reference number.
Your home is at risk if you fail to keep up repayments on a mortgage, rent or other loan secured on it. Please make sure you can afford the repayments before you take out a mortgage.
These particulars are of opinion only, are intended to give a fair description and do not form the basis of a contract. The descriptions and all other information are believed to be correct as of November 2025
This is an indication of how much these apartments might cost.
For more detailed information please register your interest in this property.
| Minimum Full Market Value | £400,000 |
|---|---|
| Minimum Share Percentage | 40% |
| Minimum Share Value | £160,000 |
| Monthly Service Charge | £201 |
| Minimum Deposit | £16,000 |
Kenton Apartments offers you the opportunity to live in an area known for its trendy image of bars, restaurants and nightlife. On Clapham High Street you'll find a familiar mix of shops and a selection of the major banks. Clapham Common Tube Station is within 0.2 miles and Clapham North Tube Station is within 0.5 miles. Clapham High Street Station is within 0.5 miles and clapham Junction Station is within 1.7 miles. Bus links 35, 37, 88, 137, 155, 322, 345 & 417. Road links include the A3 and South Circular.
Others
- Pets allowed
















