Lariat Court
£130,000 for a 40% share
Property description
Purpose built apartment in popular area.
Property address
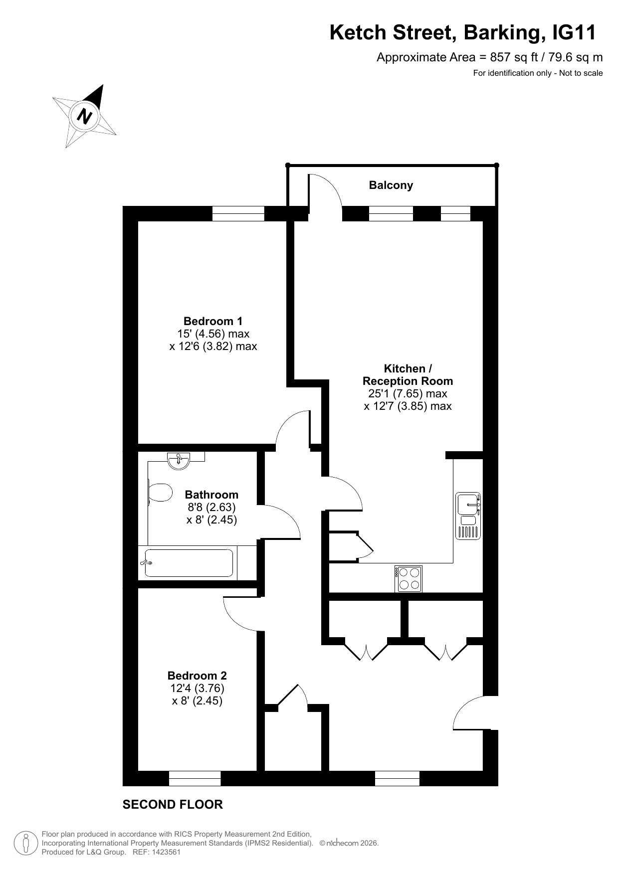
Ketch Street, Barking, IG11 7RY
Shared Ownership
SHARED OWNERSHIP
Full Market Value: £ 325,000
Share Value (40%): £130,000
Monthly Rent: £587.09
Service Charge: £243.09
Ground Rent: £175 pa
Council Tax Band: C
130 year lease commenced February 2016 - 119 years remaining
EWS1 Certification is available for this property, A2 rating.
The hallway of this bright and spacious dual aspect two-bedroom apartment includes three large strorage cupboards. A stylish open plan living area, flooded with natural light from wide floor-length windows and door opens onto a private balcony. The kitchen, fitted with modern high gloss units finished with a wood effect worktop, benefits from integrated appliances including a fridge freezer, oven, hob and extractor fan. There are two well proportioned bedrooms and a contemporary bathroom complete with a white three-piece suite with a shower over bath and a tile surround.
With a diverse and lively local community on the doorstep, everything you need is within a 15-minute walk. East Street is home to bustling cafes, bars and restaurants and a range of independent shops and local street markets offer fresh produce. For a wider choice of groceries and household goods, Tesco, Asda and Lidl are a short walk away. For cultural enthusiasts, enjoy outdoor classical concerts in the ruins of Barking Abbey, or catch the latest blockbuster at the Showcase Cinema. Westfield Stratford City and its array of high street and designer shops is a short train journey away. The open green spaces, sports facilities and riverside promenades at the Queen Elizabeth Olympic Park are also well worth a visit.
Barking Station is just a 10-minute walk. Travel into the City or Canary Wharf in less than 20 minutes by tube. The A406 and A13 are within a few minutes' drive for road links to the M11, M25 and wider motorway network. There are several bus stops on London Road providing services within the area.
The buyer will require a deposit to obtain a mortgage for this property.
To meet the requirements for this property we require as a guideline, a minimum household income of £52,974. If you are offered the home, your ability to afford this property will be assessed at your financial interview. Please note that applicants should purchase the maximum share that they can afford and sustain.
Only applicants who are registered with London and Quadrant will be eligible to be offered a property in one of our schemes. If you are not registered, please visit our website www.lqhomes.com and register to obtain your unique reference number.
Your home is at risk if you fail to keep up repayments on a mortgage, rent or other loan secured on it. Please make sure you can afford the repayments before you take out a mortgage.
These particulars are of opinion only, are intended to give a fair description and do not form the basis of a contract. The descriptions and all other information are believed to be correct as of March 2026.
This is an indication of how much these apartments might cost.
For more detailed information please register your interest in this property.
| Minimum Full Market Value | £325,000 |
|---|---|
| Minimum Share Percentage | 40% |
| Minimum Share Value | £130,000 |
| Monthly Service Charge | £243 |
| Minimum Deposit | £13,000 |
With a diverse and lively local community on the doorstep, everything you need is within a 15-minute walk. East Street is home to bustling cafes, bars and restaurants and a range of independent shops and local street markets offer fresh produce. For a wider choice of groceries and household goods, Tesco, Asda and Lidl are a short walk away. For cultural enthusiasts, enjoy outdoor classical concerts in the ruins of Barking Abbey, or catch the latest blockbuster at the Showcase Cinema. Westfield Stratford City and its array of high street and designer shops is a short train journey away. The open green spaces, sports facilities and riverside promenades at the Queen Elizabeth Olympic Park are also well worth a visit.
Barking Station is just a 10-minute walk. Travel into the City or Canary Wharf in less than 20 minutes by tube. The A406 and A13 are within a few minutes' drive for road links to the M11, M25 and wider motorway network. There are several bus stops on London Road providing services within the area.
Others
- Balcony
- Central heating
Outside space
- Communal Garden
Heating
- Double Glazing
Accessibility
- Lift access
















