Miller House
£150,000 for a 25% share
Property description
Three bedrooms - private garden - suit sharers or families A £500 Amazon Voucher on Completion*
Property address
Miller House, 4 Beaufort Gardens, Stepney, E1 3FA


Shared Ownership
SHARED OWNERSHIP
Full Market Value: £600,000
Share Value (25%): £ 150,000
Monthly Rent: £1015.41
Service Charge: £262.11
Council Tax Band: E
125 year lease commenced April 2013 - 112 years remaining
EWS1 Certification - A letter of assurance is in place confirming no remediation costs will be passed to leaseholders.
A £500 Amazon Voucher on Completion*
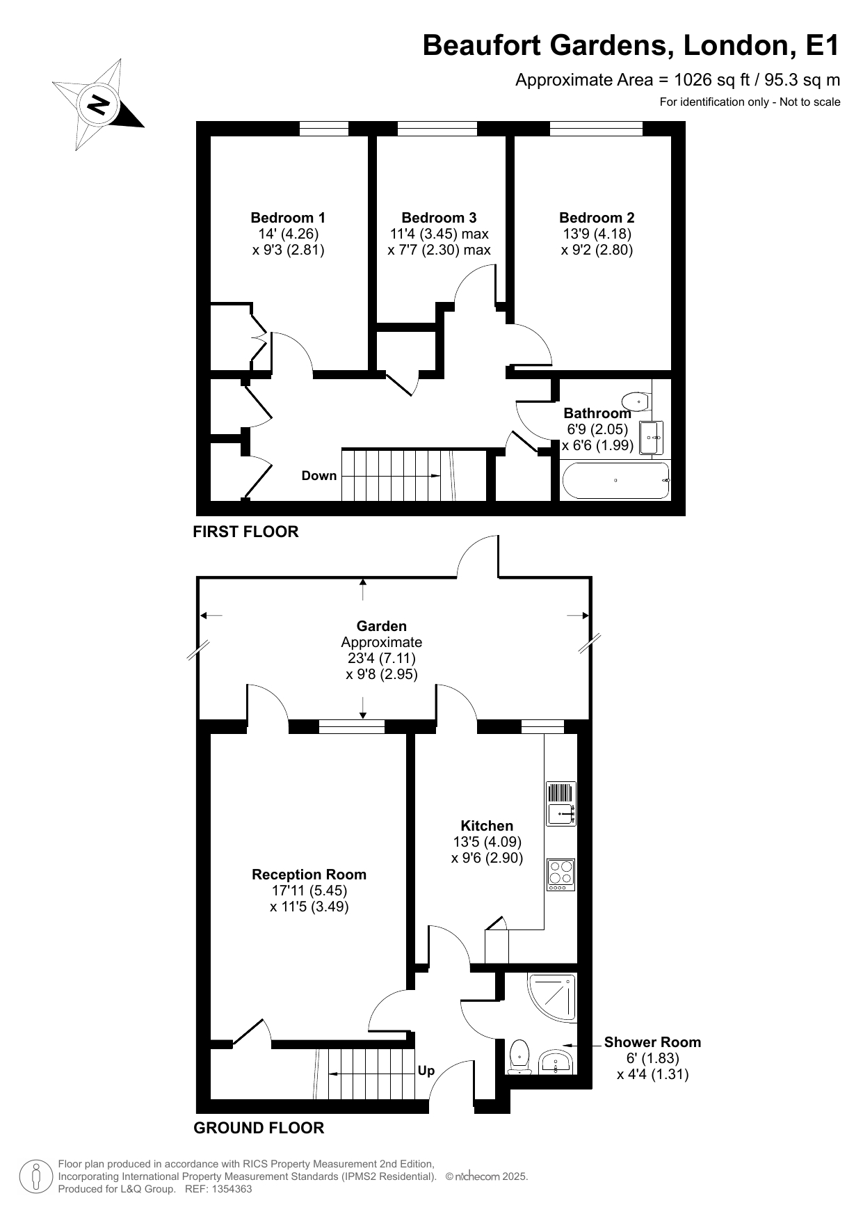
Enter this spacious split level apartment into an entrance lobby with stairs to the first floor. There is a separtate kitchen/breakfast room, reception room and shower room on the ground floor. The modern galley style kitchen is fitted with a range of white wall and base units including integrated appliances and has a door to the full width rear garden , laid to patio, which opens onto well kept communal gardens. The reception room also provides access to the garden. On the first floor find three double bedrooms, one with built-in storage and a family bathroom.
Ideally located for easy transport throughout the City and beyond via Stepney Green (District, Hammersmith & City) and Whitechapel (Elizabeth, Windrush), as well as multiple bus routes, and Limehouse for the DLR. Nearby Mile End Park and Stepney City Park Farm offer open green spaces.
The buyer will require a deposit to obtain a mortgage for this property.
To meet the requirements for this property we require as a guideline, a minimum household income of £72,396. If you are offered the home, your ability to afford this property will be assessed at your financial interview. Please note that applicants should purchase the maximum share that they can afford and sustain.
Only applicants who are registered with London and Quadrant will be eligible to be offered a property in one of our schemes. If you are not registered please visit our website www.lqhomes.com and register to obtain your unique reference number.
Your home is at risk if you fail to keep up repayments on a mortgage, rent or other loan secured on it. Please make sure you can afford the repayments before you take out a mortgage.
These particulars are of opinion only, are intended to give a fair description and do not form the basis of a contract. The descriptions and all other information are believed to be correct as of October 2025
*The £500 Amazon Voucher is currently being offered on this resale property for a limited time and is applicable to any Shared Ownership purchase that completes a reservation on or before 31st October 2025, and then completes on the sale before 31st January 2026. The voucher will be supplied within 75 days of completion of the purchase and will be an E-Voucher, issued by email to the Sole or Primary Purchaser. Further terms and conditions may be in place from the voucher provider, and it is the purchaser's responsibility to satisfy themselves of any terms applicable. The voucher cannot be offset against any fees or monies due from the purchase. L&Q will not be responsible for direct payments to any lenders, or third parties. L&Q reserve the right to remove an incentive at any time.
This is an indication of how much these apartments might cost.
For more detailed information please register your interest in this property.
Minimum Full Market Value | £600,000 |
---|---|
Minimum Share Percentage | 25% |
Minimum Share Value | £150,000 |
Monthly Service Charge | £262 |
Minimum Deposit | £15,000 |
Ideally located for easy transport throughout the City and beyond via Stepney Green (District, Hammersmith & City) and Whitechapel (Elizabeth, Windrush), as well as multiple bus routes, and Limehouse for the DLR. Nearby Mile End Park and Stepney City Park Farm offer open green spaces.
Others
- Central heating
- Double Glazing
Outside space
- Rear Garden