Mindaro Way
£104,000 for a 40% share
Property description
Driveway - parking to the front , Good EPC rating and within Building Warranty. Make this home your own, enjoy a £500 Amazon Voucher on completion*
Property address
Mindaro Way, Rugby CV22 5GJ, Rugby, CV22 5GJ


Shared Ownership
**If you would like to arrange a viewing for this property please click to register your interest. If you have an eligible Shared Ownership application with L&Q, you will be sent the sellers contact information to arrange a viewing**
Shared Ownership
Full Market Value: £260,000
Share Value (40%): £104,000
Monthly Rent: £347.11
Service Charge: £53.20
Council Tax Band: B
990 year lease commenced May/2024 -988 years remaining
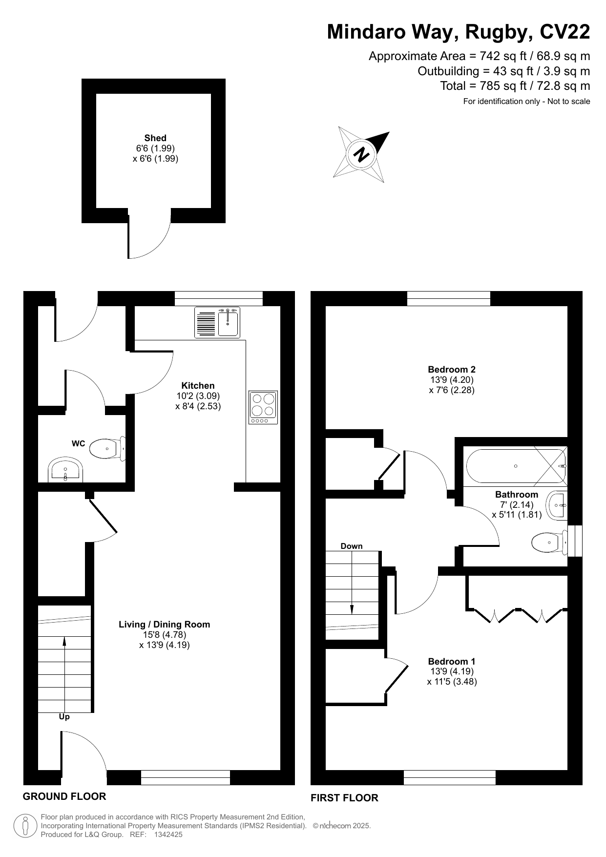
L&Q welcomes you to view this 2 bedroom, end of terrace house.
This bright and spacious end of terrace house consists of a stylish open-plan kitchen and living area, flooded with natural light from wide floor-length windows. The kitchen is fitted with white wall and base units, with under-cupboard lighting, and a white stone effect worktop. The kitchen also benefits from integrated appliances including a fridge freezer, oven, cooker and extractor fan Spacious main double bedroom with built-in cupboards. Bright and airy second double bedroom with modern windows. The bathroom comes complete with a white three-piece suite with a shower over bath and a stone tile surround. Additional double storage cupboards in hall
French doors open out onto a generous private garden, complete with a patio seating area, a handy 2x2 shed, ideal for summer evenings or a bit of light gardening.
Outside, the property has parking space at the front, and still benefits from 8 years remaining on the NHBC warranty - giving you added peace of mind.
Located in the heart of Hillmorton, the property is just a short walk to Sainsbury's, Cock Robin Wood, and is within easy reach of Dunchurch village. The area also has exciting developments underway, including a new primary school, park, and community sports fields.
The buyer will require a deposit to obtain a mortgage for this property.
To meet the requirements for this property we require as a guideline, a minimum household income of £33,192. If you are offered the home, your ability to afford this property will be assessed at your financial interview. Please note that applicants should purchase the maximum share that they can afford and sustain.
Only applicants who are registered with London and Quadrant will be eligible to be offered a property in one of our schemes. If you are not registered please visit our website www.lqhomes.com and register to obtain your unique reference number.
Your home is at risk if you fail to keep up repayments on a mortgage, rent or other loan secured on it. Please make sure you can afford the repayments before you take out a mortgage.
These particulars are of opinion only, are intended to give a fair description and do not form the basis of a contract. The descriptions and all other information are believed to be correct as of September 2025.
*The £500 Amazon Voucher is currently being offered on this resale property for a limited time and is applicable to any Shared Ownership purchase that completes a reservation on or before 31st October 2025, and then completes on the sale before 31st January 2026. The voucher will be supplied within 75 days of completion of the purchase and will be an E-Voucher, issued by email to the Sole or Primary Purchaser. Further terms and conditions may be in place from the voucher provider, and it is the purchaser's responsibility to satisfy themselves of any terms applicable. The voucher cannot be offset against any fees or monies due from the purchase. L&Q will not be responsible for direct payments to any lenders, or third parties. L&Q reserve the right to remove an incentive at any time.
This is an indication of how much these apartments might cost.
For more detailed information please register your interest in this property.
Minimum Full Market Value | £260,000 |
---|---|
Minimum Share Percentage | 40% |
Minimum Share Value | £104,000 |
Monthly Service Charge | £53 |
Minimum Deposit | £10,400 |
Located in the heart of Hillmorton, the property is just a short walk to Sainsbury's, Cock Robin Wood, and is within easy reach of Dunchurch village. The area also has exciting developments underway, including a new primary school, park, and community sports fields.
Outside space
- Back Garden
- Private Garden
Others
- Double Glazing
Parking
- Driveway