Oxton Road - NW
£68,250 for a 35% share
Property description
Private driveway / Long lease / Great transport links
Property address
Oxton Road, Skelmersdale, WN8 6HT
Shared Ownership
** If you would like to arrange a viewing for this property please click to register your interest. If you have an eligible Shared Ownership application with L&Q, you will be sent the sellers contact information to arrange a viewing**
Shared Ownership
Full Market Value: £195,000
Share Value (35%): £68,250
Monthly Rent: £338.00
Council Tax Band: B
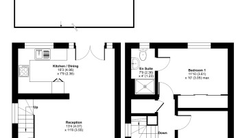
L&Q welcomes you to view this 2 bedroom semi-detched house.
This bright and spacious semi-detached modern house, flooded with natural light, The kitchen is fitted with integrated appliances including a fridge freezer, oven, hob and extractor. Spacious main double bedroom benefitting from en-suite with shower and fitted wardrobes, as well as a bright and airy second double bedroom. The bathroom comes complete with a white three-piece suite with a shower over bath and a stone tile surround. Additional storage cupboards, large rear garden and private driveway
The buyer will require a deposit to obtain a mortgage for this property.
If you are offered the home, your ability to afford this property will be assessed at your financial interview. Please note that applicants should purchase the maximum share that they can afford and sustain.
Only applicants who are registered with London and Quadrant will be eligible to be offered a property in one of our schemes. If you are not registered please visit our website www.lqhomes.com and register to obtain your unique reference number.
Your home is at risk if you fail to keep up repayments on a mortgage, rent or other loan secured on it. Please make sure you can afford the repayments before you take out a mortgage.
These particulars are of opinion only, are intended to give a fair description and do not form the basis of a contract. The descriptions and all other information are believed to be correct as of February 2026
This is an indication of how much these apartments might cost.
For more detailed information please register your interest in this property.
| Minimum Full Market Value | £195,000 |
|---|---|
| Minimum Share Percentage | 35% |
| Minimum Share Value | £68,250 |
| Minimum Deposit | £6,825 |
Outside space
- Back Garden
- Front Garden
- Rear Garden
Others
- Central heating
- Pets allowed
Heating
- Double Glazing
Parking
- Driveway




















