Royal House
£126,000 for a 35% share
Property description
Two bedroom apartment in great location - suit sharers
Property address
49 Church Road, Leyton, E10 5JL
Shared Ownership
SHARED OWNERSHIP
Full Market Value - £360,000
You Pay (35%) - £126,000
Monthly Rent - £533.37
Monthly Service Charge - £227.59
Annual Ground Rent - £100
Council Tax Band: C
125 year lease commenced in April 2013 (112 years remaining)
Guidance, from the Royal Institute of Chartered Surveyors (RICS), means that lenders should no longer require an EWS1 form for this property. However, we cannot guarantee that all Mortgage lenders, brokers and valuers are utilising the same criteria.
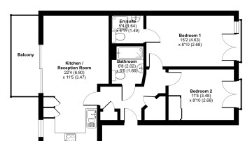
All rooms lead off a central hallway in this this bright and airy dual aspect two-bedroom apartment. The open plan living area of this apartment opens onto a north west private balcony overlooking the communal garden. The modern kitchen features fully integrated appliances. There are two double bedrooms, each with a south west facing juliette balcony. One benefits from an en-suite and the other from a fitted wardrobe. The second bedroom is served by a contemporary bathroom.
This apartment is within walking distance of Leyton Midland Road, Walthamstow Central and Walthamstow Queens Road stations, as well as Leyton underground and Leytonstone underground stations. Lea Bridge Road station, also within walking distance, gives direct access into Stratford. Local bus routes are minutes away serving Stratford, Walthamstow and Central London.
Local amenities are within walking distance in Lea Bridge Road including shops, restaurants and pubs. The local landmarks like Westfield shopping centre, Epping forest and the Olympic park are all very close and easily accessible. Hackney Marshes. Lea Valley and Wanstead Flats provide access to world class sporting facilities as well as the opportunity to explore nature and wildlife.
The buyer will require a deposit to obtain a mortgage for this property.
To meet the requirements for this property we require as a guideline, a minimum household income of £49,820. If you are offered the property, your ability to afford this property will be assessed at your financial interview. Please note that applicants should purchase the maximum share that they can afford and sustain.
Only applicants who are registered with London and Quadrant will be eligible to be offered the property for our schemes. If you are not registered please visit our website www.lqhomes.com and register to obtain your unique reference number.
Your home is at risk if you fail to keep up repayments on a mortgage, rent or other loan secured on it. Please make sure you can afford the repayments before you take out a mortgage.
These particulars are of opinion only, are intended to give a fair description and do not form the basis of a contract. The descriptions and all other information are believed to be correct as of December 2025.
This is an indication of how much these apartments might cost.
For more detailed information please register your interest in this property.
| Minimum Full Market Value | £360,000 |
|---|---|
| Minimum Share Percentage | 35% |
| Minimum Share Value | £126,000 |
| Monthly Service Charge | £228 |
| Minimum Deposit | £12,600 |
This apartment is within walking distance of Leyton Midland Road, Walthamstow Central and Walthamstow Queens Road stations, as well as Leyton underground and Leytonstone underground stations. Lea Bridge Road station, also within walking distance, gives direct access into Stratford. Local bus routes are minutes away serving Stratford, Walthamstow and Central London.
Local amenities are within walking distance in Lea Bridge Road including shops, restaurants and pubs. The local landmarks like Westfield shopping centre, Epping forest and the Olympic park are all very close and easily accessible. Hackney Marshes. Lea Valley and Wanstead Flats provide access to world class sporting facilities as well as the opportunity to explore nature and wildlife.
Others
- Balcony
- Central heating
- Pets allowed
Outside space
- Communal Garden
Heating
- Double Glazing
Parking
- Off street parking


















