Shipman Road
£131,250 for a 35% share
Property description
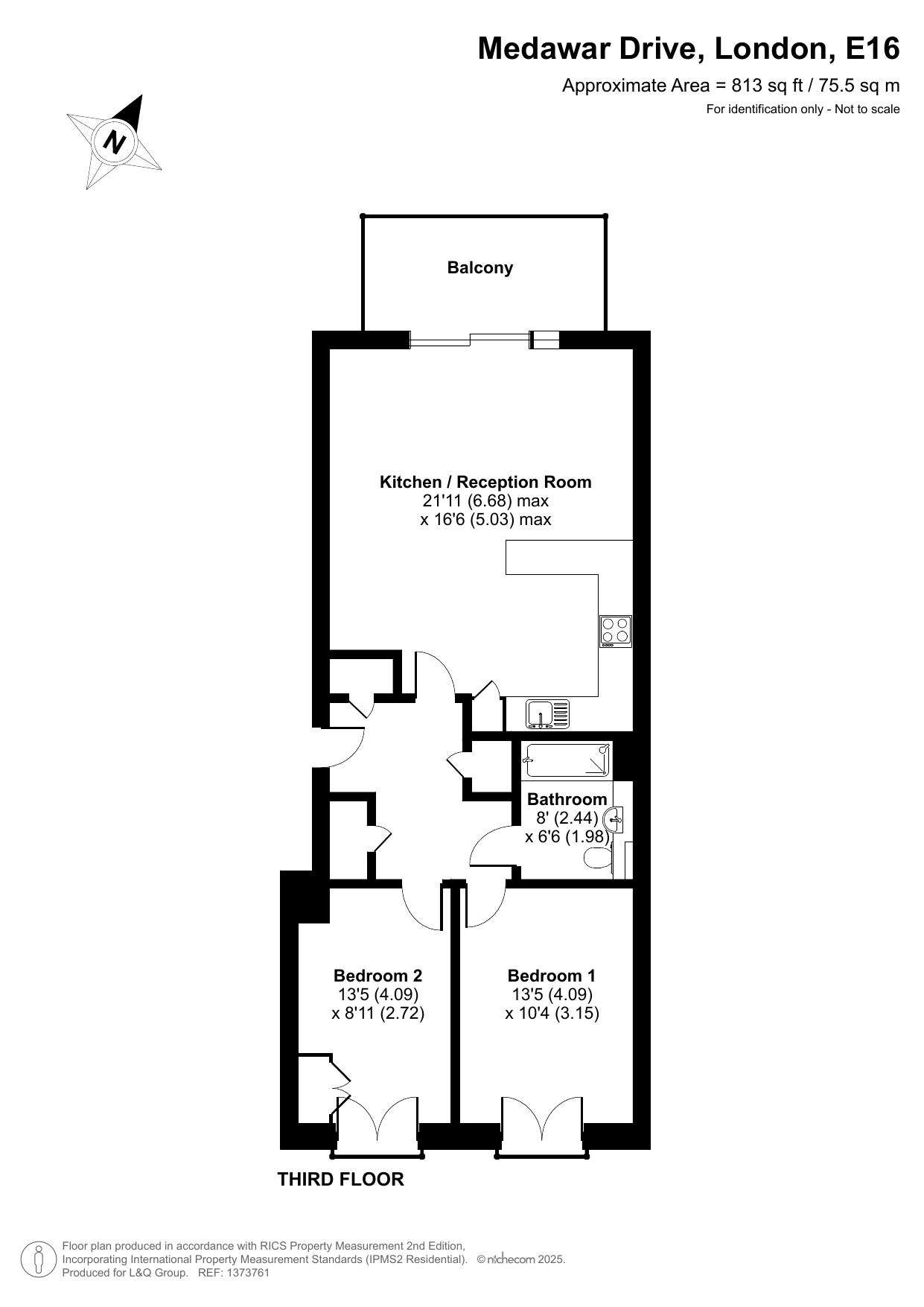
Two bedroom third floor apartment with parking
Property address
Shipman Road, E16 3BF
Shared Ownership
SHARED OWNERSHIP
Full Market Value: £375,000
Share Value (35%): £131,250
Monthly Rent: £934.74
Service Charge: £263.10
Annual Ground Rent £350.00
Council Tax Band: C
125 year lease commenced June 2017 - 116 years remaining
EWS1 CERTIFICATION IS AVAILABLE FOR THIS BLOCK - B1 RATING- We are now working with an independent panel of Fire Engineers to review any L&Q building inspections conducted by Tri Fire. Where the panel is not satisfied with the inspection and certificate awarded, we will instruct a new inspection of the building as soon as possible.
*** If you would like to arrange a viewing for this property please click to register your interest. If you have an eligible Shared Ownership application with L&Q, you will be sent the sellers contact information to arrange a viewing ***
All rooms lead from a central hallway, incorporating storage, in this dual aspect apartment. The large open plan living area is south facing and opens onto a private balcony large enough to relax and dine. The modern kitchen features high gloss units and integrated appliances. There are two generous bedrooms, each with a juliette balcony. The larger of the bedrooms includes built-in storage. A contemporary bathroom completes the accommodation.
This property benefits from a sinking fund. A sinking fund is a long-term savings plan that leaseholders contribute to every month through service charges. This is used to pay for major works that are required, such as replacing a roof.
The property is exceptionally well-connected for easy commuting across London. Prince Regent DLR station is just a short walk away, with frequent services into Canary Wharf, the City and beyond, while Custom House station (Elizabeth Line and DLR) is also within close walking distance, offering rapid links to Bank, Liverpool Street, Heathrow Airport and Stratford's major shopping and entertainment hub. Additional nearby DLR stops such as Royal Victoria and Beckton Park further enhance connectivity. Good local bus services provide links to surrounding areas, and London City Airport is easily reachable by public transport.
For everyday essentials and services, a range of GP practices are nearby and the well-respected Newham Hospital is also within easy reach for wider NHS services.
Families will appreciate the variety of schooling options close by, with excellent local primary schools such as St Joachim's Catholic Primary School, Rosetta Primary School, Scott Wilkie Primary School, Calverton Primary School, and Drew Primary School all close by.
The buyer will require a deposit to obtain a mortgage for this property.
To meet the requirements for this property we require as a guideline, a minimum household income of £66,430. If you are offered the home, your ability to afford this property will be assessed at your financial interview. Please note that applicants should purchase the maximum share that they can afford and sustain.
Only applicants who are registered with London and Quadrant will be eligible to be offered a property in one of our schemes. If you are not registered please visit our website www.lqhomes.com and register to obtain your unique reference number.
Your home is at risk if you fail to keep up repayments on a mortgage, rent or other loan secured on it. Please make sure you can afford the repayments before you take out a mortgage.
These particulars are of opinion only, are intended to give a fair description and do not form the basis of a contract. The descriptions and all other information are believed to be correct as of December 2025.
This is an indication of how much these apartments might cost.
For more detailed information please register your interest in this property.
| Minimum Full Market Value | £375,000 |
|---|---|
| Minimum Share Percentage | 35% |
| Minimum Share Value | £131,250 |
| Monthly Service Charge | £263 |
| Minimum Deposit | £13,125 |
The property is exceptionally well-connected for easy commuting across London. Prince Regent DLR station is just a short walk away, with frequent services into Canary Wharf, the City and beyond, while Custom House station (Elizabeth Line and DLR) is also within close walking distance, offering rapid links to Bank, Liverpool Street, Heathrow Airport and Stratford's major shopping and entertainment hub. Additional nearby DLR stops such as Royal Victoria and Beckton Park further enhance connectivity. Good local bus services provide links to surrounding areas, and London City Airport is easily reachable by public transport.
For everyday essentials and services, a range of GP practices are nearby and the well-respected Newham Hospital is also within easy reach for wider NHS services.
Families will appreciate the variety of schooling options close by, with excellent local primary schools such as St Joachim's Catholic Primary School, Rosetta Primary School, Scott Wilkie Primary School, Calverton Primary School, and Drew Primary School all close by.
Parking
- Allocated parking
Others
- Balcony
- Central heating
- Pets allowed
Outside space
- Communal Garden
Heating
- Double Glazing
Accessibility
- Lift access






















