Valiant Lane
£154,000 for a 55% share
Property description
Modern purpose-built apartment at Marleigh.
Property address
Valiant Lane, Cambridge, CB5 8XB
Shared Ownership
SHARED OWNERSHIP
Full market value - £280,000
You pay (60%) - £154,000
Monthly rent - £316.00
Monthly service charge - £301.90
Annual ground rent - N/A
Council Tax Band: B
990 year lease commenced January 2022 - 987 years remaining
New guidance, from the Royal Institute of Chartered Surveyors (RICS), means that lenders should no longer require an EWS1 form for this property. However, we cannot guarantee that all Mortgage lenders, brokers and valuers are utilising the same criteria.
A £500 Amazon Voucher on Completion
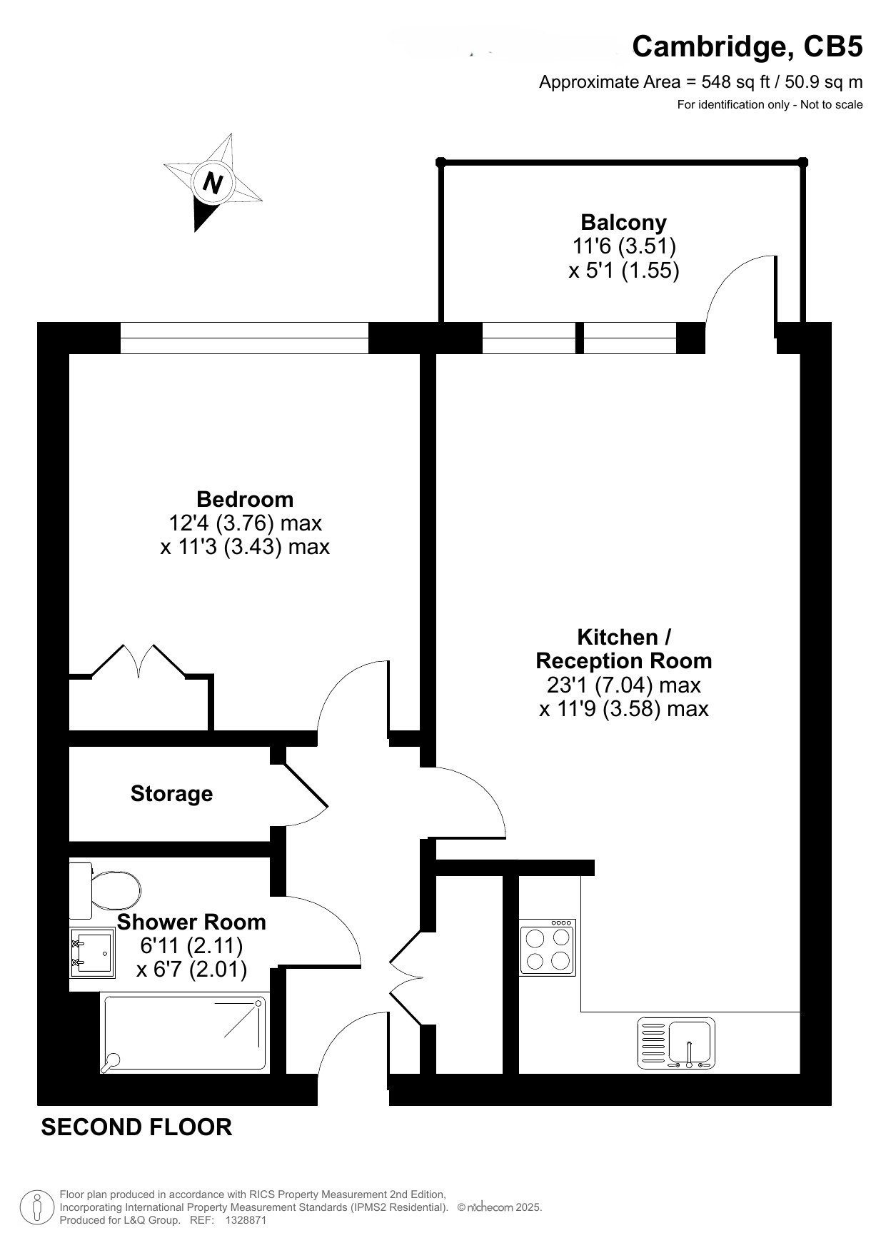
Enter this apartment via the hallway, which contains two large stores. The open plan reception area includes a high quality kitchen with integrated appliances. The room opens onto a south facing balcony large enough to use for relaxing and dining. A generous double bedroom with fitted wardrobe and a contemporary bathroom complete the accommodation.
Within the development find a Co-op, Fitness and well being studios, a Community Centre, Primary School Academy, Nursery, Italian cafe and deli. There are also large green open spaces, several play areas, woodlands, sports fields under construction and allotments. It's also just a short walk to the river Cam and Ditton Meadows.
Cambridge is regularly voted one of the best places in Britain to live and work. The open green spaces of Stourbridge Commons and Ditton Meadows are a favourite spot with locals for walking and summer picnics, with many more parks scattered around the city.The city has an eclectic mix of food and drink destinations, while Cambridge's shopping scene takes in the big High Street names and one-of-a-kind boutiques.
Frequent train services take commuters working in London to King's Cross in under 50 minutes, and Liverpool Street in just over an hour. L&Q at Marleigh's handy access to the A14 and M11 makes getting around by car just as easy. Those who'd rather travel by bike are well taken care of, with a choice of cycle routes. You are just a two minute walk to the Park and Ride. The airport is just a few minutes in the car with Stanstead and Luton accessible in under an hour.
The buyer will require a deposit to obtain a mortgage for this property.
To meet the requirements for this property we require as a guideline, a minimum household income of £52,575. If you are offered the property, your ability to afford this property will be assessed at your financial interview. Please note that applicants should purchase the maximum share that they can afford and sustain.
Only applicants who are registered with London and Quadrant will be eligible to be offered a property in one of our schemes. If you are not registered, please visit our website lqhomes.com and register to obtain your unique reference number.
Your home is at risk if you fail to keep up repayments on a mortgage, rent or other loan secured on it. Please make sure you can afford the repayments before you take out a mortgage.
These particulars are of opinion only, are intended to give a fair description and do not form the basis of a contract. The descriptions and all other information are believed to be correct as of October 2025.
This is an indication of how much these apartments might cost.
For more detailed information please register your interest in this property.
| Minimum Full Market Value | £280,000 |
|---|---|
| Minimum Share Percentage | 55% |
| Minimum Share Value | £154,000 |
| Monthly Service Charge | £302 |
| Minimum Deposit | £15,400 |
Within the development find a Co-op, Fitness and well being studios, a Community Centre, Primary School Academy, Nursery, Italian cafe and deli. There are also large green open spaces, several play areas, woodlands, sports fields under construction and allotments. It's also just a short walk to the river Cam and Ditton Meadows.
Cambridge is regularly voted one of the best places in Britain to live and work. The open green spaces of Stourbridge Commons and Ditton Meadows are a favourite spot with locals for walking and summer picnics, with many more parks scattered around the city.The city has an eclectic mix of food and drink destinations, while Cambridge's shopping scene takes in the big High Street names and one-of-a-kind boutiques.
Frequent train services take commuters working in London to King's Cross in under 50 minutes, and Liverpool Street in just over an hour. L&Q at Marleigh's handy access to the A14 and M11 makes getting around by car just as easy. Those who'd rather travel by bike are well taken care of, with a choice of cycle routes. You are just a two minute walk to the Park and Ride. The airport is just a few minutes in the car with Stanstead and Luton accessible in under an hour.
Parking
- Allocated parking
Others
- Balcony
- Central heating
- Double Glazing
- Pets allowed
Outside space
- Communal Garden















