Warren Way
£175,000 for a 50% share
Property description
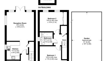
Modern two bedroom end of terrace house, with private rear garden, driveway parking in a great location.
Property address
Warren Way, Milton Keynes, MK17 8TZ
Shared Ownership
** If you would like to arrange a viewing for this property please click to register your interest. If you have an eligible Shared Ownership application with L&Q, you will be sent the sellers contact information to arrange a viewing**
Shared Ownership
Full Market Value: £350,000
Share Value (50%): £175,000
Monthly Rent: £477.38
Service Charge: £66.60
Annual Ground Rent n/a
Council Tax Band: C
250 year lease commenced March 2020 - 242 years remaining
L&Q welcomes you to view this two bedroom mid terrace house.
Welcome to this modern two bedroom end of terrace house. The property consists of a stylish open-plan kitchen and living area, flooded with natural light from wide floor-length windows, with french doors leading to back garden. The kitchen is fitted with beautiful wall and base units, and a grey marble effect worktop. The kitchen also benefits from integrated appliances including a oven, hob, extractor fan.There is also the benefit of breakfast bar. There is also a seaprate wc. There are two double bedrooms, one benefitting with built-in storage cupboards. One of the double bedrooms has floor-length windows. The bathroom comes complete with a white three-piece suite with a shower over bath and modern beige tile surround. Additional double storage cupboards in hallway. The whole property is beautifully presented.
Glebe Farm is close to the large bustling city of Milton Keynes, and the perfect location for those looking to live in a quieter area, yet still desire an abundance of activities at their fingertips. There are a variety of shops, pubs and restaurants nearby. Milton Keynes provides Centre MK, which has some of the best shopping in town, as well as a theatre and Xscape leisure centre.
Woburn Sands mainline station is a 5 minute drive away, offering services to Bedford, and for drivers the M1 offers links to the North and South. Milton Keynes Central station also serves destinations across the country including London Euston, with journeys taking just over 30 minutes plus trains to Manchester, Leeds and Birmingham.
The buyer will require a deposit to obtain a mortgage for this property.
To meet the requirements for this property we require as a guideline, a minimum household income of £50.089. If you are offered the home, your ability to afford this property will be assessed at your financial interview. Please note that applicants should purchase the maximum share that they can afford and sustain.
Only applicants who are registered with London and Quadrant will be eligible to be offered a property in one of our schemes. If you are not registered please visit our website www.lqhomes.com and register to obtain your unique reference number.
Your home is at risk if you fail to keep up repayments on a mortgage, rent or other loan secured on it. Please make sure you can afford the repayments before you take out a mortgage.
These particulars are of opinion only, are intended to give a fair description and do not form the basis of a contract. The descriptions and all other information are believed to be correct as of April 2026.
This is an indication of how much these apartments might cost.
For more detailed information please register your interest in this property.
| Minimum Full Market Value | £350,000 |
|---|---|
| Minimum Share Percentage | 50% |
| Minimum Share Value | £175,000 |
| Monthly Service Charge | £67 |
| Minimum Deposit | £17,500 |
Glebe Farm is close to the large bustling city of Milton Keynes, and the perfect location for those looking to live in a quieter area, yet still desire an abundance of activities at their fingertips. There are a variety of shops, pubs and restaurants nearby. Milton Keynes provides Centre MK, which has some of the best shopping in town, as well as a theatre and Xscape leisure centre.
Woburn Sands mainline station is a 5 minute drive away, offering services to Bedford, and for drivers the M1 offers links to the North and South. Milton Keynes Central station also serves destinations across the country including London Euston, with journeys taking just over 30 minutes plus trains to Manchester, Leeds and Birmingham.
Outside space
- Back Garden
- Rear Garden
Others
- Central heating
- Pets allowed
Heating
- Double Glazing
- Electric
- Gas central heating
Parking
- Driveway






















