Wren House
£131,250 for a 25% share
Property description
Two bedroom, two bathroom apartment suit sharers
Property address
Frank Searle Passage, Walthamstow, E17 6BL
Shared Ownership
SHARED OWNERSHIP
Full Market Value: £525,000
Share Value (25%): £131,250
Monthly Rent: £906.42
Service Charge: £272.19
Council Tax Band: C
990 year lease commenced May 2019 - 983 years remaining
EWS1 certification is available for this property - A1 rating
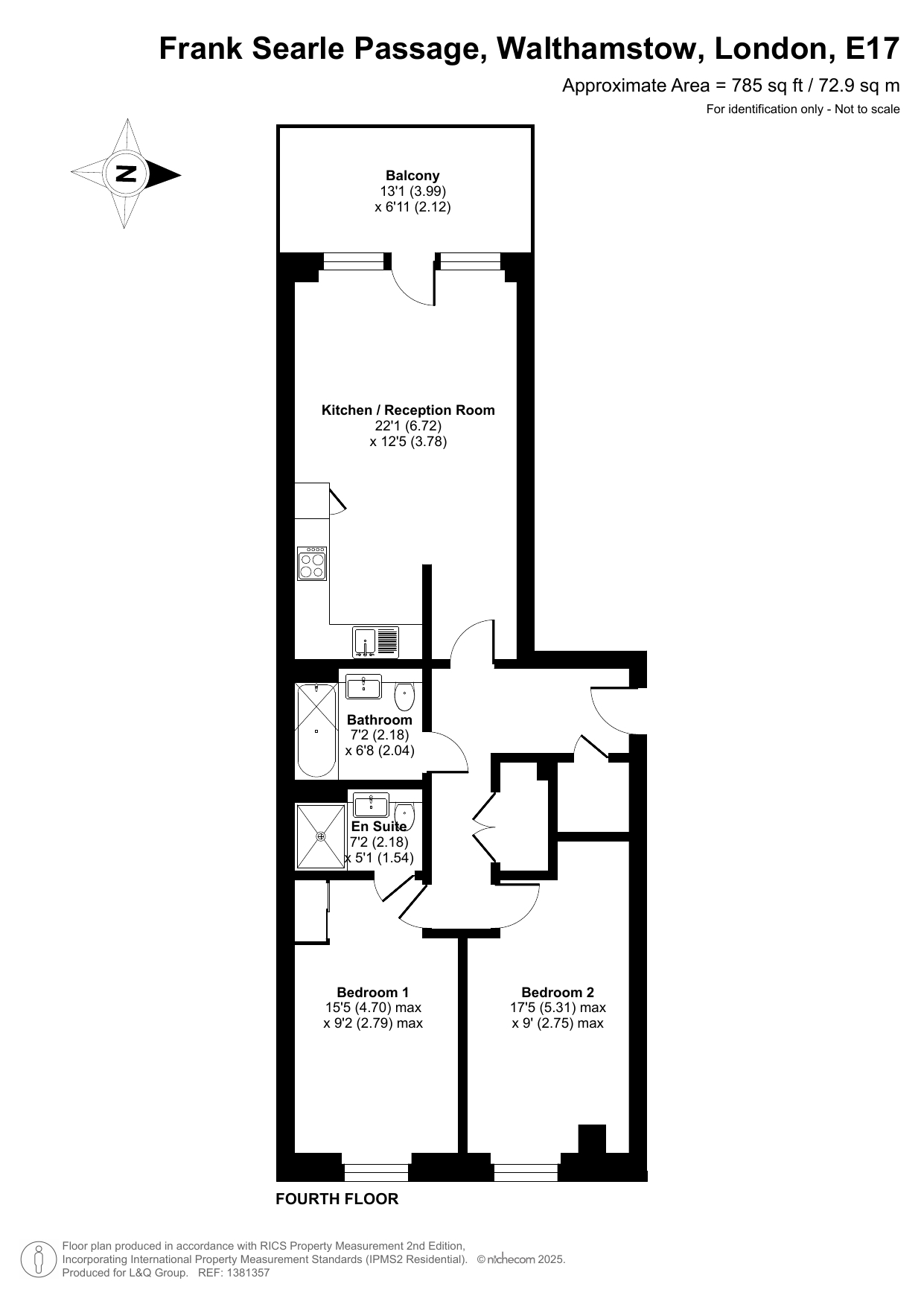
Enter this dual aspect apartment via an entrance hall, where you will find a utility cupboard and walk-in store. To your right find the well proportioned open plan living area, whihc opens onto a generous west facing private balcony overlooking the communal gardens. On the other side of the apartment are two east facing double bedrooms, the master benefitting from a mirrored wardrobe and an ensuite shower room. A contemporary bathroom serves the second bedroom.
Situated within gated communal grounds, you couldn't be any closer to Blackhorse Road station, which gives easy access to both the Victoria Line and the overground trains from Barking to Gospel Oak. Just a few minutes in the other direction will take you to St. James Street where the overground trains will whisk you into London Liverpool Street in around 15 minutes
At the heart of Walthamstow is London's newest and biggest nature reserve, Walthamstow Wetlands - a tranquil escape from everyday life. The 'Beer Mile' is on your doorstep where you'll find numerous microbreweries all of which are dog friendly, and the regular pop up food venues make it a great place to hang out at the weekends. Walthamstow Village offers a slice of country life in the city and is renowned for its local produce shops and historic buildings. It is the perfect location for brunch, with a range of bars and restaurants to choose from.
The buyer will require a deposit to obtain a mortgage for this property.
To meet the requirements for this property we require as a guideline, a minimum household income of £65,737. If you are offered the property, your ability to afford this property will be assessed at your financial interview. Please note that applicants should purchase the maximum share that they can afford and sustain.
Only applicants who are registered with London and Quadrant will be eligible to be offered a property in one of our schemes. If you are not registered, please visit our website lqhomes.com and register to obtain your unique reference number.
Your home is at risk if you fail to keep up repayments on a mortgage, rent or other loan secured on it. Please make sure you can afford the repayments before you take out a mortgage.
These particulars are of opinion only, are intended to give a fair description and do not form the basis of a contract. The descriptions and all other information are believed to be correct as at December 2025.
This is an indication of how much these apartments might cost.
For more detailed information please register your interest in this property.
| Minimum Full Market Value | £525,000 |
|---|---|
| Minimum Share Percentage | 25% |
| Minimum Share Value | £131,250 |
| Monthly Service Charge | £272 |
| Minimum Deposit | £13,125 |
Situated within gated communal grounds, you couldn't be any closer to Blackhorse Road station, which gives easy access to both the Victoria Line and the overground trains from Barking to Gospel Oak. Just a few minutes in the other direction will take you to St. James Street where the overground trains will whisk you into London Liverpool Street in around 15 minutes
At the heart of Walthamstow is London's newest and biggest nature reserve, Walthamstow Wetlands - a tranquil escape from everyday life. The 'Beer Mile' is on your doorstep where you'll find numerous microbreweries all of which are dog friendly, and the regular pop up food venues make it a great place to hang out at the weekends. Walthamstow Village offers a slice of country life in the city and is renowned for its local produce shops and historic buildings. It is the perfect location for brunch, with a range of bars and restaurants to choose from.
Others
- Balcony
- Central heating
- Double Glazing
- Lift access
Outside space
- Communal Garden




















